| BROSCHÜRE: DE | NL | EN | FR | IT
TREPEDIA
TREPEDIA
KOSTENLOSE
DEMO
Licensed & Insured Approved

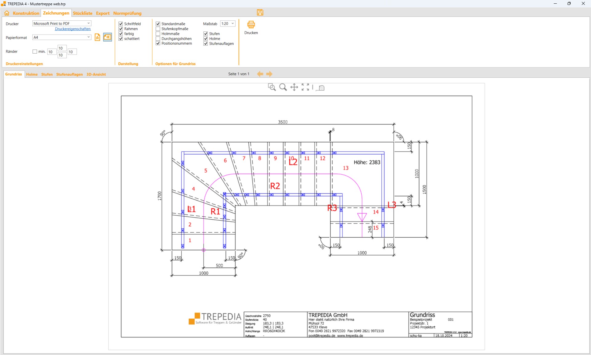
Grundriss

Flexible Darstellungsoptionen für jeden Bedarf

Der Grundriss bietet verschiedene Darstellungsoptionen - von einfachen Übersichten bis zu detailliert bemaßten Plänen.

Sehen Sie, wie schnell es funktioniert

Vielseitige Darstellung

Der Grundriss lässt viele Optionen zu. Er kann z.B. alternativ ohne Holme und dafür mit Stufenkopfmaßen ausgegeben werden. Oder ohne Stufen und nur mit bemaßten Holmen, wie es viele Metallbauer gerne haben.

TREPEDIA Grundriss Beispiel

Beispiel eines detaillierten Grundrisses mit allen Bemaßungen

Standard Grundriss

  • • Stufen und Holme
  • • Vollständige Bemaßung
  • • Geländeransicht
  • • Wandabstände

Ohne Holme

  • • Nur Stufen sichtbar
  • • Stufenkopfmaße
  • • Übersichtliche Darstellung
  • • Ideal für Planer

Nur Holme

  • • Ohne Stufen
  • • Bemaßte Holme
  • • Für Metallbauer
  • • Konstruktionsfokus

Anwendungsbereiche

Für Architekten & Planer

  • Übersichtliche Raumplanung ohne Konstruktionsdetails
  • Stufenkopfmaße für präzise Platzbedarf-Berechnung
  • Integration in Bauzeichnungen

Für Metallbauer

  • Fokus auf Holmkonstruktion und -bemaßung
  • Fertigungsgerechte Darstellung
  • Direkte Verwendung für Produktion